Firefly, luxury three bedroom villa, Verandah Estates, Antigua
- US$1,350,000
Firefly, luxury three bedroom villa, Verandah Estates, Antigua
- US$1,350,000
Description
Exclusively Listed with Stanleys Estates
A delightful three bedroom, three and a half bathroom family villa, with lovely open sea views, built on 0.31 of an acre of beautifully manicured tropical gardens. Villa Firefly is located on a gently sloping hillside and yet a few steps from the water at Verandah Estates. In many ways the perfect location for your Caribbean dream home, Verandah Estates is an upscale collection of detached residences, close to Devils Bridge on the North Eastern side of Antigua. There are over 30 acres of spectacular oceanfront, overlooking the turquoise waters of Long Bay. It is a fully fenced and gated community, with custom landscaping, paved roads, and streetlights.
Villa Firefly offers a tranquil and gentle setting, looking towards the sparkling azure waters of nearby Long Bay, lush surroundings, and elegant design. Arrive in style with ample parking and a two-vehicle carport. From the moment you step into Villa Firefly, you’re greeted by an open, light-filled lounge that seamlessly flows into the covered veranda. Double glass doors frame the stunning views and create a harmonious blend of indoor and outdoor living.
The open-plan lounge features a spacious galley kitchen designed for both functionality and style. Fully equipped with high-end appliances, the kitchen boasts a long island that serves as a breakfast or dining bar, making it the heart of the home for entertaining and casual dining. To the rear of the kitchen is a lovely spacious utility room with washer, dryer and lots of storage space.
To the right of the entry, the master suite offers a serene retreat. Currently set up for a king-sized bed, this sanctuary includes a large walk-in closet and an elegant en-suite bathroom with a double vanity and an expansive glass double shower.
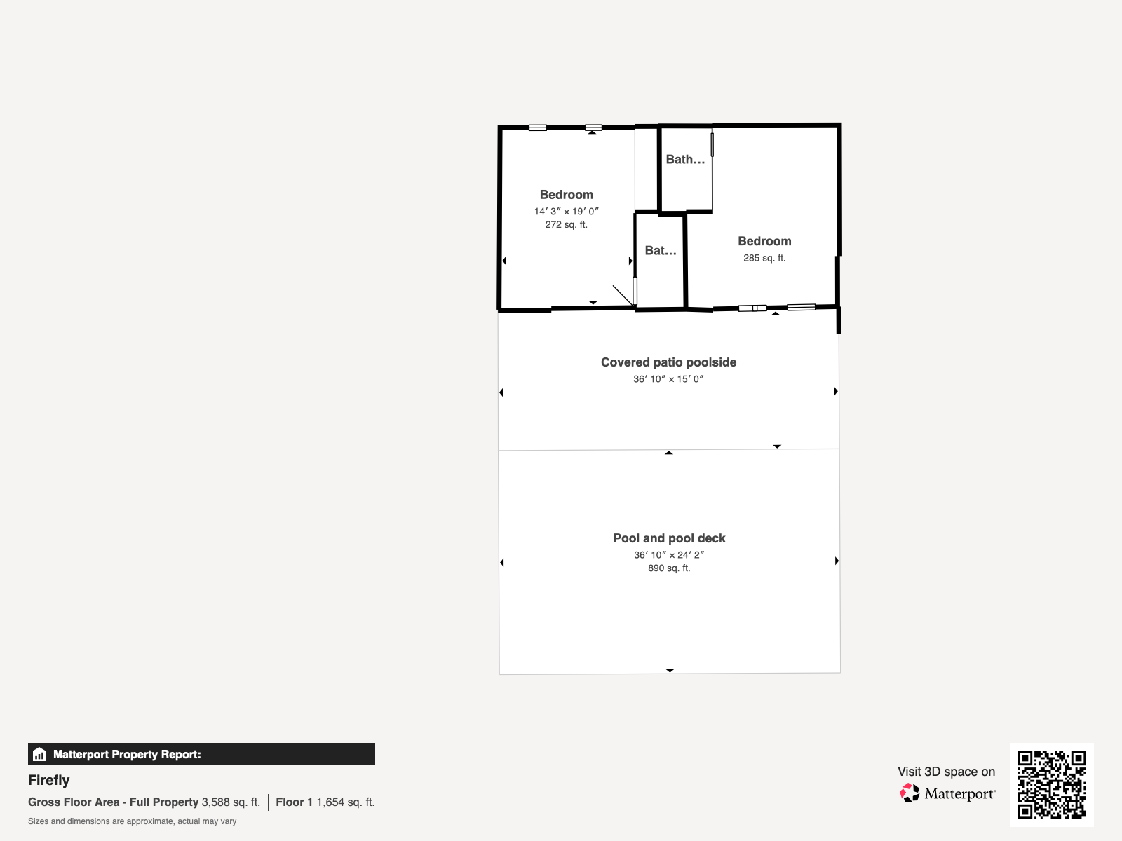
Step out onto the veranda to experience unparalleled views of the sea and tropical gardens that gently slope toward the water’s edge and a small sandy cove. The covered space is ideal for dining al fresco or unwinding with a barbecue, while the lower level pool deck accessed by stairs from the upper level verandah provides a mix of shaded and open areas for relaxation or soaking up the sun. There’s an outside shower, handy for rinsing off before and after swimming.
This lower level of Villa Firefly features two generously sized, air-conditioned double bedrooms, each with its own en-suite bathroom. Perfect for hosting guests, these rooms offer privacy and comfort in equal measure.
Villa Firefly exudes timeless sophistication with its neutral color palette, high-end finishes, and thoughtful design. Tropical plants enhance the natural beauty of the property, creating a serene oasis throughout the manicured gardens.
The property is connected to government electricity and water and includes an auto switch backup generator for added peace of mind. There is a large capacity 17,500 gallon water cistern for storage and a store room of approx 200 square feet which also houses the pool and water pumps. Villa Firefly is offered for sale partially furnished, with the final inventory to be agreed with the vendors.
Whether you’re looking for a full-time residence or an exclusive vacation home, Villa Firefly offers the perfect balance of luxury, comfort, and island charm. Don’t miss the chance to own this exquisite property in one of Antigua’s most sought-after locations.
Contact Gary, Alistair or Brad for further information and to arrange a viewing and start your journey to tropical living.
Details
Updated on January 22, 2025 at 12:16 pm-
Price US$1,350,000
-
Land Area 0.31 Acre
-
Bedrooms 3
-
Bathrooms 3.5
-
Garage 1
-
Property Type Villa
-
Property Status For Sale
Video
Address
Open on Google Maps-
Address: Villa Firefly, Verandah Estates, Willikies, Antigua and Barbuda
-
City: Saint Philip's
-
Area: Verandah Estates, Willikies
-
Country: Antigua
Overview
- Villa
- 3
- 3.5
- 1






























